Presentatie nieuwbouw Blok C Bedum
Blok C:
De volgende stap naar een levendig en aantrekkelijk centrum.
Waarom een nieuw gebouw?
Het nieuwe gebouw is onderdeel van het Centrumplan Bedum. Met dit plan maken we het centrum van Bedum aantrekkelijker en levendiger!
De aanleiding
- We willen één nieuw gebouw waar verschillende instellingen en verenigingen samenkomen,
zodat de voorzieningen zoveel mogelijk bij elkaar in de buurt zitten. - De oude gymzalen aan De Vlijt en aan de Schoolstraat waren aan vervanging toe.
- Er is behoefte aan een ruimte voor voorstellingen.
- Veel mensen willen in Bedum wonen, ook in het centrum. Daarvoor zijn nieuwe woningen nodig.
Wat komt er in het nieuwe gebouw
In het nieuwe gebouw komen de bibliotheek, de muziekschool, een dubbele gymzaal en 12 koopappartementen. Lokale verenigingen die nu nog gebruikmaken van de Meenschaar kunnen straks in dit nieuwe gebouw of in de Maranathakerk terecht.
Raadsbesluit
De gemeenteraad heeft op 5 juni 2024 de plannen voor Blok C vastgesteld.
Reageren en vervolg
Het voorlopig ontwerp voor Blok C is klaar. Wat vind je ervan? Wat spreekt je aan en wat niet? Waar moeten we bij de verdere uitwerking en tijdens de bouwfase rekening mee houden? Wij horen graag van jou!
Geef je reactie uiterlijk 24 maart 2026 aan ons door.
Vergunning
Het gebouw past niet in het omgevingsplan (dit heette eerder het bestemmingsplan). Daarom vragen we een vergunning aan. Deze vergunning is onder andere nodig omdat het nieuwe gebouw groter en hoger is dan de oude gymzaal. In deze vergunning wordt aangegeven op welke onderdelen we mogen afwijken van het omgevingsplan.
Planning (onder voorbehoud)
- Vergunningsaanvraag: zomer 2026. Als deze vergunning is verleend, kan daarna de aannemer een bouwvergunning aanvragen.
- Aanbesteding: zomer 2026, uitslag najaar 2026.
- Bouwperiode: Start in 2027, oplevering in 2028.

Het ontwerp | De plek
Het nieuwe gebouw komt op de plek van de gymzaal en de parkeerplaats bij het Kerkplein
Het ontwerp | De buitenkant
Zo komt het nieuwe gebouw eruit te zien
De gevels, het materiaal en de bouwhoogte
Het ontwerp | De omgeving
Rondom en bovenop het gebouw
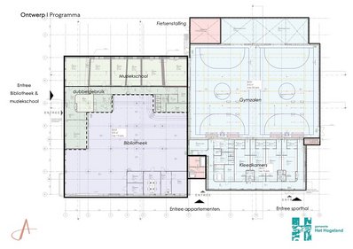
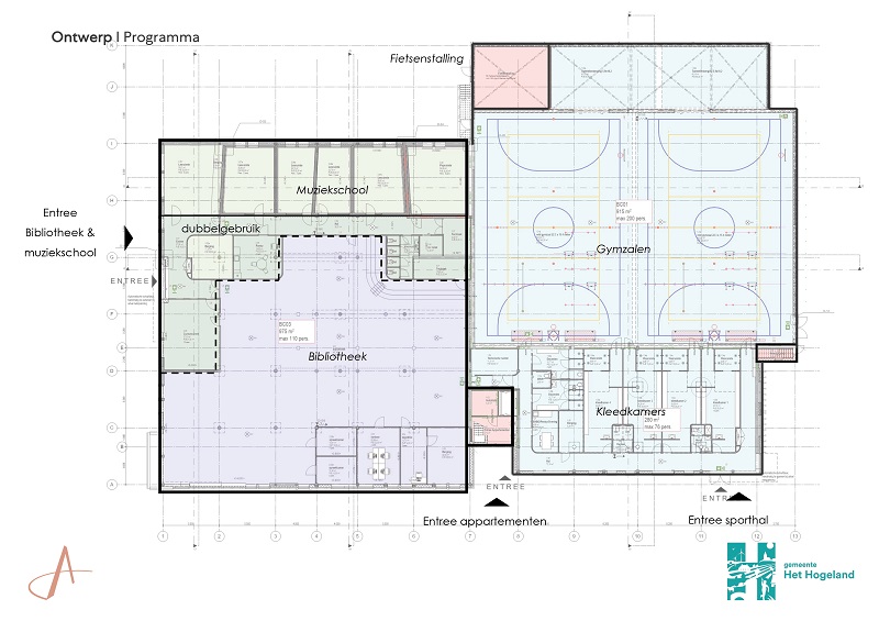
Het ontwerp | De binnenkant
Begane grond en verdiepingen
- Begane grond: bibliotheek, gymzalen, de muziekschool en ruimte voor verschillende verenigingen.
- 1e verdieping: 6 koopappartementen (80m2 - 150 m2)
- 2e verdieping: 6 koopappartementen (80 m2 - 150 m2)
Klik of tik om de afbeelding te vergroten
Centrumplan Bedum | alle projecten
Centrumplan Bedum (lijstweergave)
Overzicht van lopende en afgeronde projecten
- Bederawalda
- Blok C
- De Vlijtborg
- Faunatorens
- Molenweg en Boterdiep
- Nieuw Kerkplein
- Skatebaan, park en parkeerterrein
- Centrumplan Bedum
- De Vlijtborg
- Afgerond | 10 appartementen én winkels op de begane grond
- Nieuw Kerkplein
- Start 2027 | Na afronding nieuwbouw van Blok C en Bederawalda
- Blok C
- Start 2026 | Ruimte voor bibliotheek, gymzalen, de muziekschool en verschillende verenigingen. Afronding naar
verwachting eind 2027 / begin 2028.
- Start 2026 | Ruimte voor bibliotheek, gymzalen, de muziekschool en verschillende verenigingen. Afronding naar
- Bederawalda
- Start 2026 | 24 appartementen en 5 gezinswoningen. Project van
Woningstichting Wierden en Borgen.
- Start 2026 | 24 appartementen en 5 gezinswoningen. Project van
- Skatebaan, park en parkeerterrein
- Afgerond | Op de oude plek van de Togtemaarschool hebben we een skatebaan, park en parkeerterrein gemaakt.
- Molenweg & Boterdiep Zz
- Afgerond | Een aantrekkelijke verbinding tussen de winkelcentra de Scheve Toren en Veeno. Met extra
groen, waterrecreatie en waar je prettig kunt wandelen.
- Afgerond | Een aantrekkelijke verbinding tussen de winkelcentra de Scheve Toren en Veeno. Met extra
- Faunatorens
- Start 2027 | Bij de vijver tussen De Vrije Gang en de woningen aan Bederawalda hebben we nieuwe beschoeiing gemaakt. De vijver wordt nog uitgebreid tot aan De Vlijt en we maken er nog faunatorens.
Meer weten? hethogeland.nl/centrumplanbedum




















