Presentatie 10 september 2025 versterking Uithuizen
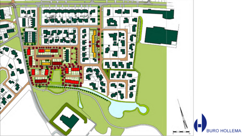
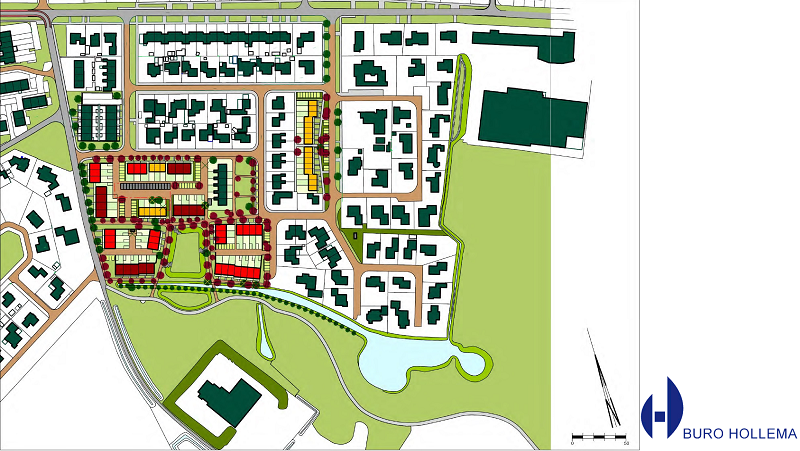
Riepenbuurt - Zuidhoek Uithuizen

Uitgangspunten
- Stedenbouwkundige context
- Bestaande bomen behouden
- Klimaatadaptief zowel nat als droog en divers
- Verblijven en ontmoeten
- Auto uit het straatbeeld
- Circulariteit
- Versterken connectie met het landschap
Of klinkers?




























































